Villa Mestni log

21

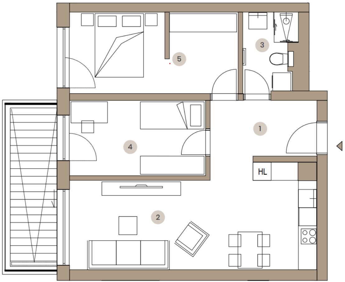
APARTMENT 21

2nd floor

Floor plan legend

Room name

area m²

1

Entrance hall

6,4 m²

2

Living area – kitchen, dining room, living room

26,1 m²

3

Bathroom

4,4 m²

4

Bedroom

14,6 m²

5

Room 1

11,1 m²

Apartment:

62,6 m²

Terrace (paved)

7,7 m²

Storage

8,8 m²

Total

79,1 m²

No. of parking spaces (in the basement)

1 PM