Villa Mestni log

18

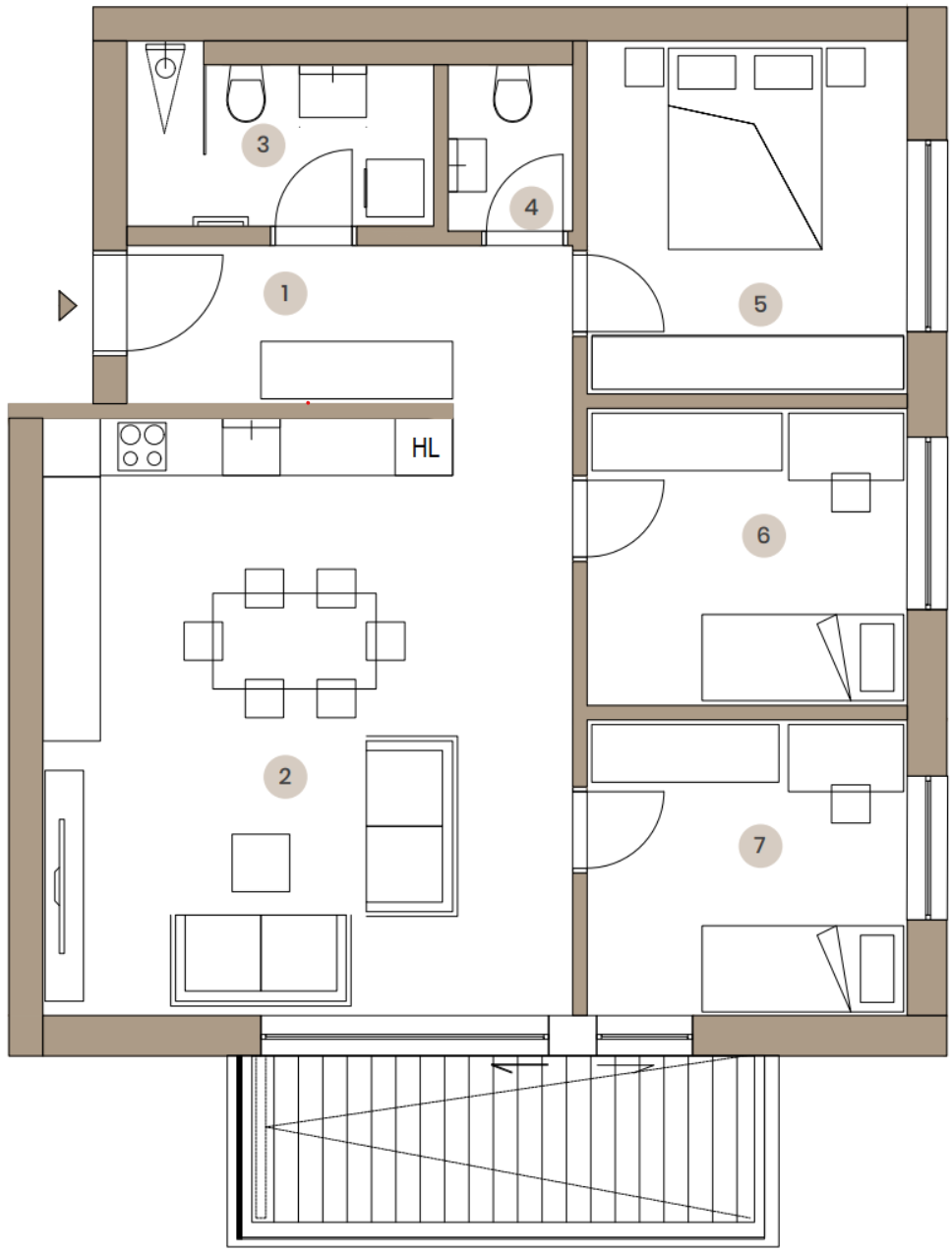
APARTMENT 18

2nd floor

Floor plan legend

Room name

area m²

1

Entrance hall

7,7 m²

2

Living area – kitchen, dining room, living room

34,0 m²

3

Bathroom

5,7 m²

4

Toilet

2,3 m²

5

Bedroom

12,3 m²

6

Room 1

10,4 m²

7

Room 2

10,3 m²

Apartment:

82,7 m²

Terrace (paved)

8,8 m²

Storage

5,6 m²

Total

97,1 m²

No. of parking spaces (in the basement)

2 PM