Villa Mestni log

15

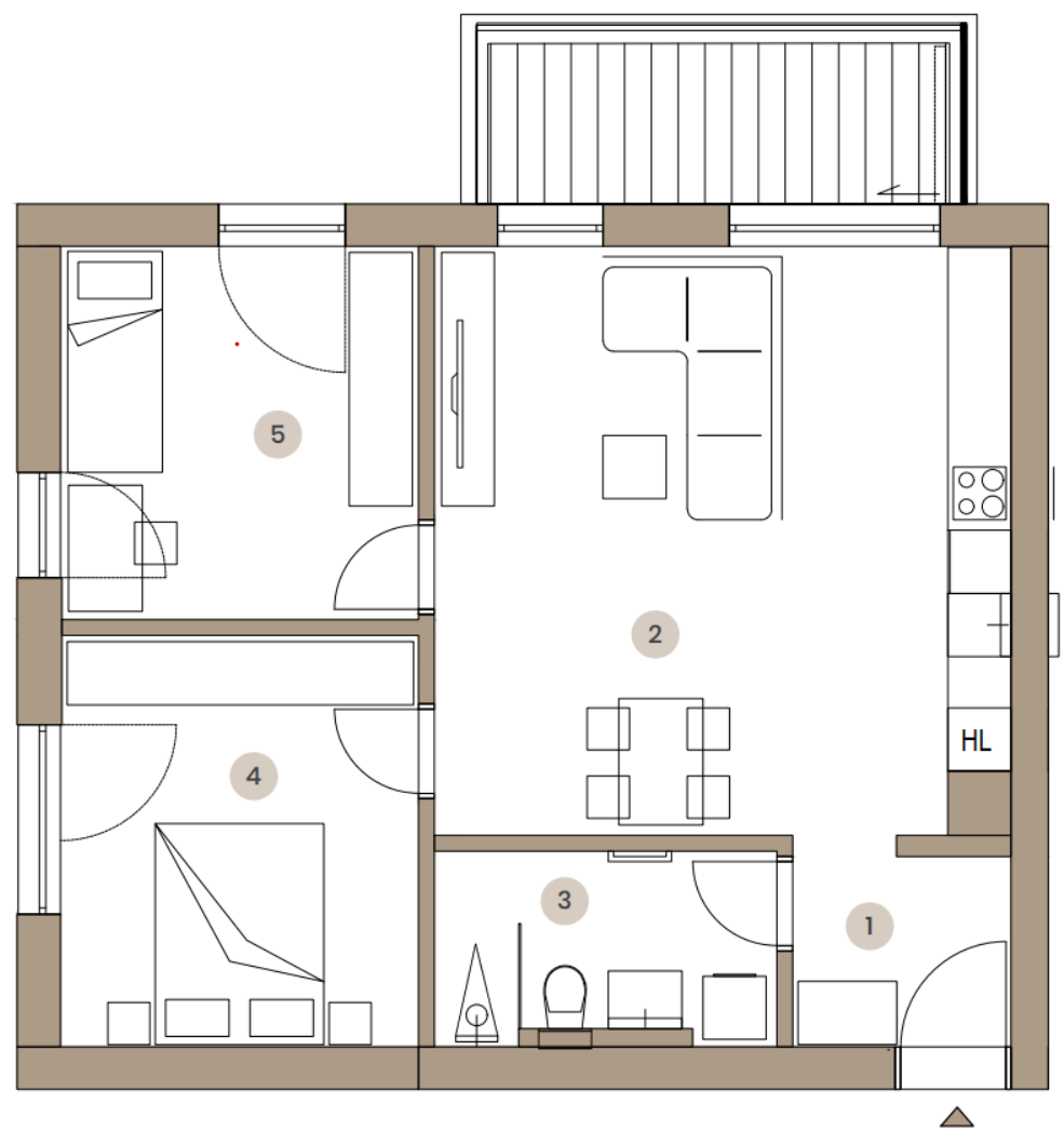
APARTMENT 15

1st floor

Floor plan legend

Room name

area m²

1

Entrance hall

3,8 m²

2

Living area – kitchen, dining room, living room

30,3 m²

3

Bathroom

5,8 m²

4

Bedroom

13,3 m²

5

Room 1

12 m²

Apartment:

65,2 m²

Terrace (paved)

6,5 m²

Storage

7,8 m²

Total

79,5 m²

No. of parking spaces (in the basement)

1 PM