Vila Mestni log

8

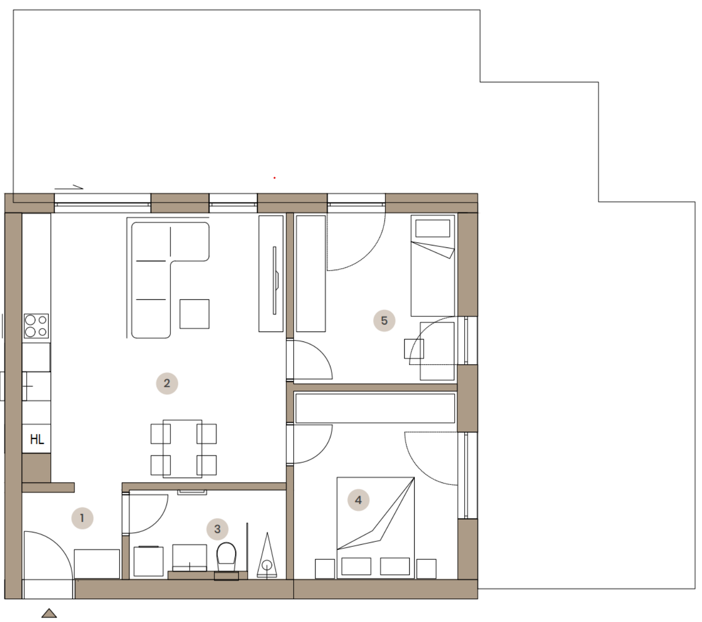
STANOVANJE 8

Pritličje

Legenda tlorisa

Ime sobe

površina m²

1

Predprostor

3,8 m²

2

Bivalni prostor – kuhinja, jedilnica, dnevna soba

30,3 m²

3

Kopalnica

5,8 m²

4

Spalnica z garderobno omaro

13,3 m²

5

Soba 1

12,0 m²

Stanovanje:

65,2 m²

Terasa (tlakovana)

80,8 m²

Shramba

8,0 m²

Skupaj

154,0 m²

Število parkirnih mest (v kleti)

13:00