Vila Mestni log

6

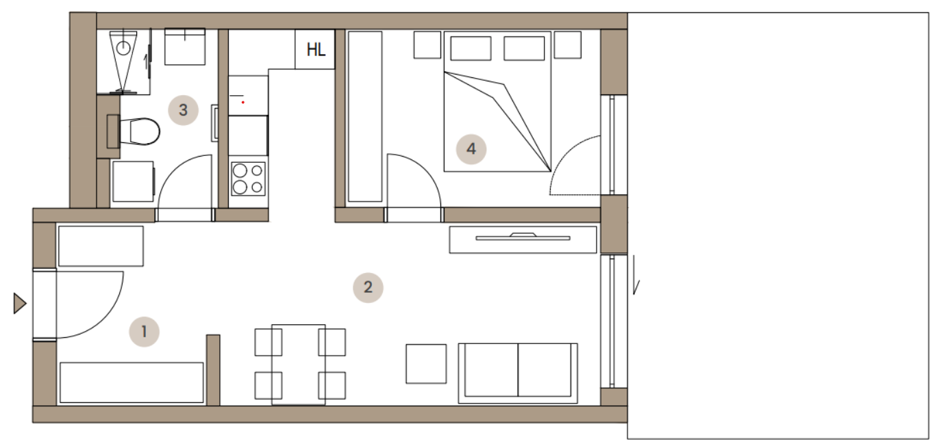
STANOVANJE 6

Pritličje

Legenda tlorisa

Ime sobe

površina m²

1

Predprostor

6,3 m²

2

Bivalni prostor – kuhinja, jedilnica, dnevna soba

20,0 m²

3

Kopalnica

4,4 m²

4

spalnica

10,3 m²

Stanovanje:

41,0 m²

Terasa (tlakovana)

28,4 m²

Shramba

5,6 m²

Skupaj

57,0 m²

Število parkirnih mest (v kleti)

13:00