Vila Mestni log

2

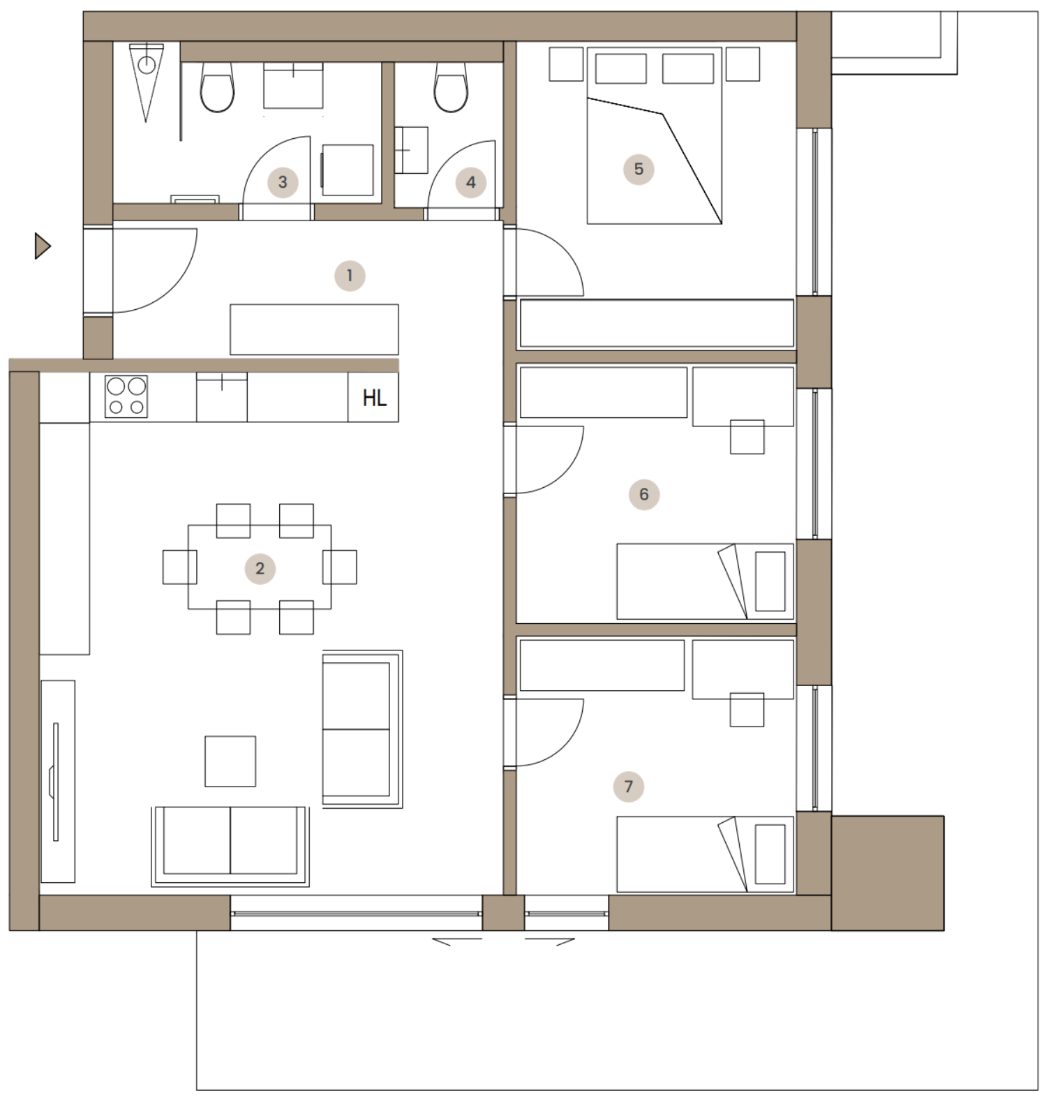
STANOVANJE 2

Pritličje

Legenda tlorisa

Ime sobe

površina m²

1

Predprostor

7,2 m²

2

Bivalni prostor – kuhinja, jedilnica, dnevna soba

29,1 m²

3

Kopalnica

5,7 m²

4

Stranišče

2,3 m²

5

spalnica

12,3 m²

6

Soba 1

10,4 m²

7

Soba 2

10,3 m²

Stanovanje:

77,3 m²

Terasa (tlakovana)

64,6 m²

Shramba

5,6 m²

Skupaj

148,5 m²

Število parkirnih mest (v kleti)

13:00

Število parkirnih mest (na terenu)

13:00