Vila Mestni log

16

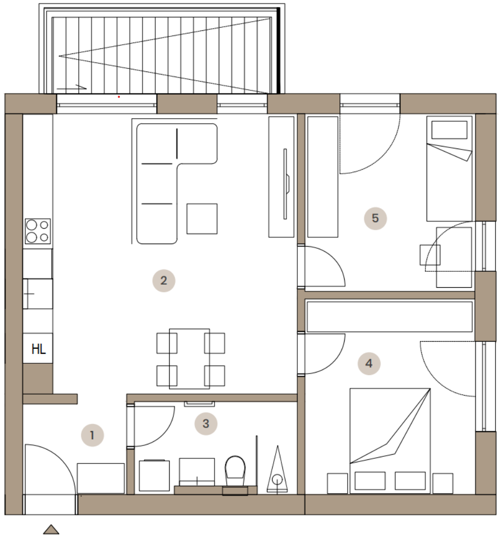
STANOVANJE 16

1. nadstropje

Legenda tlorisa

Ime sobe

površina m²

1

Predprostor

3,8 m²

2

Bivalni prostor – kuhinja, jedilnica, dnevna soba

30,3 m²

3

Kopalnica

5,8 m²

4

spalnica

13,3 m²

5

Soba 1

12 m²

Stanovanje:

65,2 m²

Terasa (tlakovana)

6,5 m²

Shramba

5,6 m²

Skupaj

77,3 m²

Število parkirnih mest (v kleti)

13:00