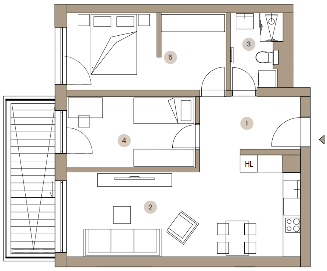
Vila Mestni log

13

STANOVANJE 13

1. nadstropje

Legenda tlorisa

Ime sobe

površina m²

1

Predprostor

6,4 m²

2

Bivalni prostor – kuhinja, jedilnica, dnevna soba

26,1 m²

3

Kopalnica

4,4 m²

4

spalnica

14,6 m²

5

Soba 1

11,1 m²

Stanovanje:

62,6 m²

Terasa (tlakovana)

7,7 m²

Shramba

8,0 m²

Skupaj

87,3 m²

Število parkirnih mest (v kleti)

13:00